rsa regina margherita
Progetto di restauro con adeguamento sismico dell’edificio già sede dell’ istituto per orfani denominato “Regina Margherita”, danneggiato dagli eventi sismici del 24/08/2016.
Caratterizzazione dell’intervento:
- Ubicazione: Comune Teramo, regione Abruzzo
- Settore: Sanità, Restauro
- Anno di riferimento progetto: 09/2022 – 05/2024
- Portata investimento: 7.647.739,72 €
- Committente: Ufficio Speciale Ricostruzione Post Sisma 2016 – Regione Abruzzo
- Scopo: Restauro, adeguamento sismico
- Codifica E.22 | S.06 | IA.01 | IA.02 | IA.03
- Area Totale del Intervento 2347 mq
Restauro e Adeguamento Sismico dell’Istituto Regina Margherita
Un progetto di riqualificazione per il cuore storico di Teramo
Obiettivo del Progetto
Il restauro e l’adeguamento sismico dell’Istituto Regina Margherita rappresentano un’opportunità unica per valorizzare il patrimonio storico e urbanistico di Teramo. Situato nel cuore del centro storico, l’edificio è stato rinnovato per ridare vita a un elemento fondamentale del tessuto sociale e culturale della città.
Riqualificazione e Conservazione
Il progetto ha mirato a:
- Riqualificare il centro storico tramite il recupero e la valorizzazione di un edificio di grande valore storico.
- Restaurare l’impianto architettonico originario, eliminando superfetazioni e preservando le caratteristiche planivolumetriche.
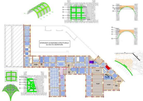
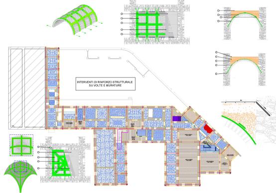
- Consolidare le strutture murarie, le volte e i solai, garantendo un adeguamento sismico che rispetta le normative vigenti.
Struttura e Funzionalità
L’edificio restaurato è organizzato su due livelli principali e un sottotetto parzialmente praticabile. Le aree funzionali sono progettate per offrire comfort, efficienza e servizi di alta qualità:
- Zona accoglienza: Al piano terra, spazi dedicati al pubblico con uffici, servizi igienici, un bar e un locale di culto.
- Aree di riabilitazione: Sempre al piano terra, soggiorni e spazi per la riabilitazione con servizi di supporto integrati.
- RSA: Due nuclei al piano superiore, ciascuno con 20 posti letto, per persone anziane non autosufficienti.
- Spazi verdi: Giardino e viali pedonali esterni, pensati per favorire il benessere e la socializzazione.
Una Struttura Pensata per il Benessere
L’Istituto Regina Margherita è progettato per fornire assistenza sanitaria, sociale e di recupero agli ospiti, rispettandone la privacy e creando opportunità di socializzazione. L’ambiente garantisce un equilibrio tra comfort personale e interazione collettiva, in linea con i più alti standard di qualità.
Un Progetto che Guarda al Futuro
Questo intervento non è solo un esempio di eccellenza nel restauro architettonico, ma anche un simbolo di rinascita per la comunità di Teramo. Grazie a un equilibrio tra storia e innovazione, l’Istituto Regina Margherita si pone come modello di sostenibilità e integrazione sociale.
